Logo of Coldwell Banker Best Realty
Main Office 714.451.1700 ȸ»çÀ§Ä¡  |  ÀÎÆ®¶ó³Ý  |  ·Î±×ÀÎ
An open house is scheduled on Sat, 02/07/2026 2PM ~ 4PM
Property photo 1 of 510 Venice Wy, Venice
À§ »çÁøÀ» Ŭ¸¯ÇϽøé Å« »çÁøÀ» º¼ ¼ö ÀÖ½À´Ï´Ù
510 Venice Wy
Venice, CA 90291
Venice Áö¿ª
°¡°Ý:$1,595,000  $1,675,000
$1,411.50 / Sq.Ft.
¹æ¼ö:3¿å½Ç¼ö:2
°Ç¹°¸éÀû:1,130 Sq.Ft.°Ç¼³¿¬µµ:1953
À¯Çü:Single Family Residence, Detached
MLS #:25607513»óÅÂ:Active
µî·ÏÀÏ:10/17/2025º¯°æÀÏ:2/6/2026
 Take a Virtual Tour of this property 

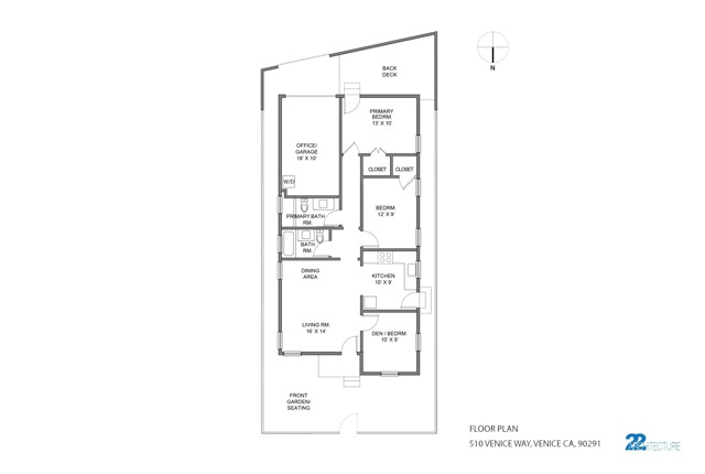
Fully reimagined by 22 Architecture, this circa 1953 3BD/2BA Mid-Century Modern bungalow blends timeless design with modern livability. Ideally located near Erewhon, Gjelina, Abbot Kinney, the Venice Canals, and the beach, the home offers an effortless connection to the best of coastal living. Renovated with permits, the residence features new baths, a reconfigured layout, and updated kitchen with Italian tile, custom quartz, and premium appliances. Spa-inspired bathrooms include a Hansgrohe rain shower, Toto bidet, and deep soaking tub. The finished garage/office with central heating, motorized glass door, laundry, and 240V EV outlet offers flexible use. The rear wall was reconfigured to meet code-required parking dimensions, with plans and permits available for review. Outdoors, teak fencing, built-in seating, and lush landscaping create a private garden retreat. Set on a rare 30-foot-wide lot, the property offers a broader footprint and greater design flexibility than most Venice parcels, allowing for a more open floor plan, enhanced light, and the potential for future architectural expansion.
¹æ±¸Á¶ ÆíÀǽü³
  • 3 Bedrooms
  • 2 Full Baths
  • Bedrooms: Den
  • Dining: Formal Dining Room
  • View: Coastline
 
  • Pool: None
  • Spa: None
  • Appliances: Dishwasher, Refrigerator, Gas Range
ÀÎÅ׸®¾î ¿Ü°ü/±¸Á¶
  • Heating: Central Furnace
  • Cooling: None
 
  • Stories: One Level
  • Style: Bungalow
  • Patio: Porch, Deck
´ëÁö Ä¿¹Â´ÏƼ/°ü¸®
  • Lot Sq. Ft.: 1,963
  • Acres: 0.045
 
  • LA County
  • Area: Venice
  • HOA:  +
°¡°ÝÁ¤º¸ ¸®½ºÆÃÁ¤º¸
  • Current Price: $1,595,000
  • Original Price: $1,675,000
  • Price/Sq. Ft.: $1,411.50
 
  • List Type: Standard
  • Listed Date: 10/17/2025
  • Modified Date: 2/6/2026
µî·Ï¿¡ÀÌÀüÆ® µî·Ïȸ»ç
William Baker The Agency
 
  Mortgage Calculator
 ¸Å¹°°¡°Ý:
 ´Ù¿îÆäÀÌ¸ÕÆ®:
 À¶Àڱݾ×:
 À¶ÀڱⰣ:
 ÀÌÀÚÀ²: %
 ¿ù ÆäÀÌ¸ÕÆ®:
  Need Help?
June Lee
June Lee
DRE# 01305455
ÀüÈ­ 562-882-8949
MLS # 25607513¸¦ ¾ð±ÞÇϼ¼¿ä
  ´Ù¸¥ À̹ÌÁö ¾ò±â
Contact Agent button


Aerial View  
Nearby Similar Home Sales[Map all] 
1
Property photo of 308 Windward AV0.17 miles
308 Windward AV
$2,750,000
2 brs/2 bas/1,121 sf
2
Property photo of 427 Sherman Canal0.25 miles
427 Sherman Canal
$2,095,000
2 brs/2 bas/1,025 sf
3
Property photo of 547 28th AV0.31 miles
547 28th AV
$2,250,000
2 brs/2 bas/1,041 sf
4
Property photo of 1113 ELECTRIC AV0.37 miles
1113 ELECTRIC AV
$1,250,000
1 brs/2 bas/1,010 sf
5
Property photo of 2500 Abbot Kinney Unit 100.57 miles
2500 Abbot Kinney Unit 10
$1,049,999
2 brs/3 bas/975 sf
6
Property photo of 2500 Abbot Kinney BL0.57 miles
2500 Abbot Kinney BL
$1,050,000
2 brs/3 bas/975 sf
7
Property photo of 2616 Abbot Kinney BL0.64 miles
2616 Abbot Kinney BL
$1,799,000
2 brs/2 bas/1,283 sf
8
Property photo of 724 San Miguel AV0.66 miles
724 San Miguel AV
$1,499,000
3 brs/3 bas/1,236 sf
9
Property photo of 4265 Marina City Dr.0.69 miles
4265 Marina City Dr.
$599,000
1 brs/1 bas/935 sf
10
Property photo of 4314 Marina City DR0.72 miles
4314 Marina City DR
$569,000
1 brs/1 bas/935 sf
11
Property photo of 4337 Marina City DR0.8 miles
4337 Marina City DR
$475,000
1 brs/1 bas/935 sf
12
Property photo of 109 Dudley AV0.81 miles
109 Dudley AV
$1,649,000
1 brs/3 bas/1,024 sf
13
Property photo of 630 Rose AV0.86 miles
630 Rose AV
$1,395,000
1 brs/2 bas/1,260 sf
14
Property photo of 1060 Nowita PL0.92 miles
1060 Nowita PL
$2,400,000
3 brs/2 bas/1,280 sf
15
Property photo of 2480 Penmar AV1 miles
2480 Penmar AV
$799,000
2 brs/3 bas/1,261 sf
16
Property photo of 2940 Neilson WY1.08 miles
2940 Neilson WY
$1,230,000
1 brs/2 bas/1,081 sf
17
Property photo of 823 Commonwealth AV1.09 miles
823 Commonwealth AV
$1,700,000
3 brs/2 bas/1,220 sf
18
Property photo of 1046 Princeton DR1.12 miles
1046 Princeton DR
$990,000
1 brs/1 bas/1,183 sf
19
Property photo of 13700 Marina Pointe DR1.15 miles
13700 Marina Pointe DR
$849,000
1 brs/2 bas/996 sf
20
Property photo of 13700 Marina Pointe DR1.15 miles
13700 Marina Pointe DR
$895,000
1 brs/1 bas/996 sf

The information above, though secured from sources believed to be reliable, cannot be guaranteed. The buyer should independently verify this information to his/her satisfaction. Coldwell Banker Best Realty may or may not be the listing broker of this property. In either case, where allowed by law, Coldwell Banker Best Realty can represent you in the purchase of this property.

Based on information from California Regional Multiple Listing Service, Inc. as of 2/6/2026. This information is for your personal, non-commercial use and may not be used for any purpose other than to identify prospective properties you may be interested in purchasing. Display of MLS data is usually deemed reliable but is NOT guaranteed accurate by the MLS. Buyers are responsible for verifying the accuracy of all information and should investigate the data themselves or retain appropriate professionals. Information from sources other than the Listing Agent may have been included in the MLS data. Unless otherwise specified in writing, Broker/Agent has not and will not verify any information obtained from other sources. The Broker/Agent providing the information contained herein may or may not have been the Listing and/or Selling Agent.

Zillow.com, Zillow, Zestimate, and Zindex are registered trademarks or trademarks of Zillow, Inc. ®Zillow, Inc. and suppliers. Any use of Zillow tools is subject to our general Terms of Use.